Дома под ключ в Ейске
Отзывы из Яндекс Карт
4.9
100 отзывов
Дополнительные услуги 88%
2 154 оценок
Комплектации 89%
1 535 оценок
Планировки 90%
2 484 оценок
Проекты 93%
2 231 оценок
С
Арно06.02.2025 г.
Компания имеет большой опыт работы и предлагает только проверенные временем решения, что внушает доверие и уверенность в долговечности постройки.
Отзывы из Google Карт
4.8
60 отзывов
Дополнительные услуги 88%
2 154 оценок
Комплектации 89%
1 535 оценок
Планировки 90%
2 484 оценок
Проекты 93%
2 231 оценок
С
Никифор Мухин05.05.2026 г.
У меня участок неровный, думал не получится с гаражом. БрусДома сделали проект 8,5х9,5 с цоколем, все просчитали. Доволен как слон, хотя смету пришлось увеличить на 15% из-за свай — не учли грунт.
С
Юрий Кольцов27.04.2026 г.
Мне 65 лет, строю баню последний раз. Выбрал компакт 5,5х5,5 с печкой и санузлом. Сделали всего за 10 дней старый я уже парится, доволен как слон. Только дверь в предбаннике чуть перекосило.
С
Нона Щ.06.02.2026 г.
Заказывала каркасную баню 4х5 с верандой в аренду на участке. Очень дёшево и быстро — за пять дней. Но через год фанера на потолке в предбаннике пошла волнами от влажности. Для сезонной-то нормально, но на постоянку бы не советовала.
С
Демид Яковлев19.08.2025 г.
Огромная благодарность за гибкость и готовность идти навстречу! Вносил изменения в проект уже в процессе строительства, добавлял окно, переносил перегородку — всё сделали без лишних разговоров и доплат. Построили дом моей мечты, в котором учтено всё до мелочей. Теперь я счастливый обладатель прекрасного деревянного дома!
Отзывы из 2гис
4.9
46 отзывов
Дополнительные услуги 88%
2 154 оценок
Комплектации 89%
1 535 оценок
Планировки 90%
2 484 оценок
Проекты 93%
2 231 оценок
С
Филипп Ф.09.03.2026 г.
Сначала сомневался, читал отзывы, но рискнул. Построили дом 8х9 с верандой и двумя входами, все по чертежам, даже трубы для канализации заизолировали правильно.
С
Серафим Чистяков15.01.2026 г.
Когда принимал дом, был список из пунктов, что проверять. Ходил с ним и галочки ставил. Обнаружил пару недочетов по электропроводке, все исправили в тот же день.
С
Юна А.02.05.2025 г.
Выражаю сердечную благодарность за наш прекрасный дом. Мы переехали из города и теперь наслаждаемся тишиной и природой в экологичном и тёплом брусовом доме. Зимой было тепло и уютно, летом прохладно. Строители учли все наши пожелания по планировке, и теперь у каждого члена семьи есть своё личное пространство.


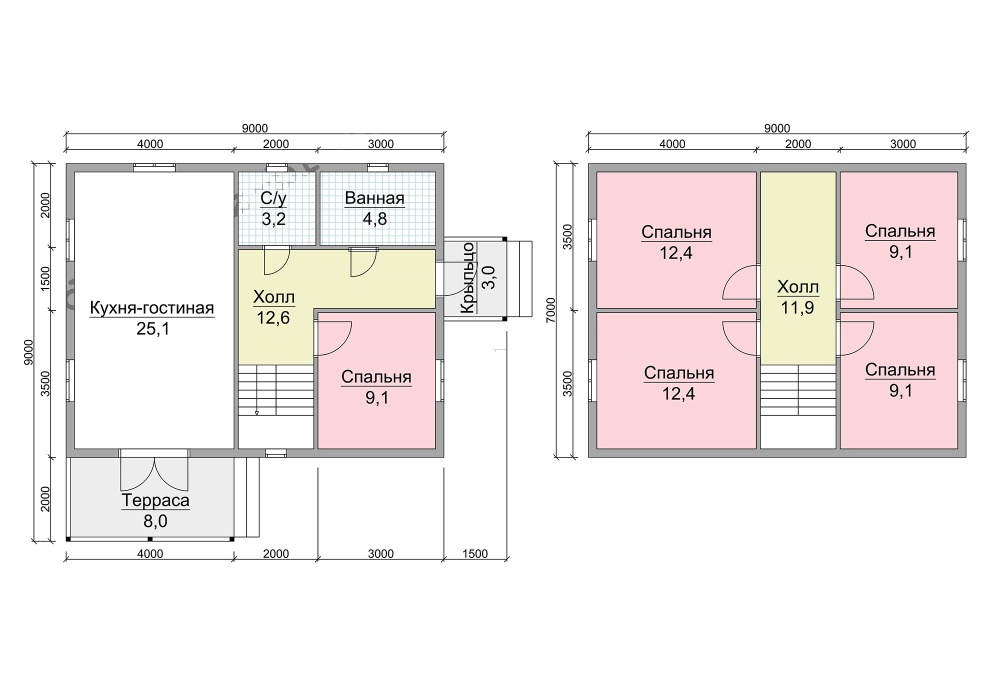
Проект №123 Каркасный дом с пятью спальнями 7х9

каркас из строганой доски
Создайте свой план для этого проекта
и отправьте его нам на расчет в один клик.
Каркасный дом (150 мм) 7х9 Толщина утепления 150 мм 3709400 Заказать
Каркасный дом (200 мм) 7х9 Толщина утепления 200 мм 3926600 Заказать

Доставка включена в стоимость дома!

Для того, чтобы адаптировать готовый проект и получить свою уникальную планировку, воспользуйтесь планировщиком.

При помощи планировщика можно создавать подходящие эскизы, планы, схемы, чертежи дома с мансардой, эркером, с требуемым числом комнат. Вы сможете получить отличный проект, стопроцентно отвечающий вашим запросам.

Вы имеете возможность выбрать определенный вид крыши: четырехскатная, двускатная и вальмовая. Двухскатная считается особенно популярной у малометражных построек.

Востребованные на данный момент размеры домов и коттеджей: мини - до 50м2 (чаще всего, 1 этажные); компактные - от 70 до 100 квадратов (обычно двухэтажные); большие постройки - от 150 квадратных метров и свыше.

Готовы предложить дуплексы - каркасные дома с двумя входами на две семьи. Эти дома предполагаются для двух хозяев, они делятся на две части, для обоих половин - свой отдельный вход.


Наши работы

Перейти в галерею


Комплектация

Площадь застройки: 74 м2
Длина: 7 м
Ширина: 9 м
Общая площадь: 109.7 м2
Исполнение Под ключ (с отделкой)
Фундамент Свайно-винтовой или ж/б сваи (рассчитываются отдельно).
Гидроизоляция фундамента Рубероид в два слоя.
Основание (обвязка) Из обрезного бруса 150х150 мм. 150х200 мм. согласно выбранной толщине утепления. Торцевая доска строганая 45х145/45х195+/-5 мм. согласно выбранной толщине утепления. Обработка антисептиком.
Цокольное перекрытие Строганая доска камерной сушки 45х145/45х195+/-5 мм. с шагом 590 мм. Обработка антисептиком.
Пол черновой Обрезная доска камерной сушки 20х100 мм.
Влаго-ветрозащита чернового пола Мембрана Ондутис А100.
Внешние стены Стойки каркаса из строганой доски камерной сушки 45х145/45х195+/-5 мм. с шагом 590 мм. Верхняя двойная и нижняя обвязки из строганой доски камерной сушки 45х145/45х195+/-5 мм. Разгрузочный ригель из строганой доски 45х145+/-5 мм. Укосины из строганой доски 20х95 мм.
Перегородки Стойки каркаса из строганой доски камерной сушки 45х95+/-5 мм. с шагом 590 мм. Верхняя двойная и нижняя обвязки из строганой доски 45х95+/-5 мм. Разгрузочный ригель из строганой доски камерной сушки 45х145+/-5 мм. Укосины из строганой доски камерной сушки 20х95 мм.
Сборка каркаса На гвозди.
Высота от пола до потолка Дом одноэтажный: 2,5 м. Дом с мансардой: 1-ый этаж- 2,5 м.
2-ой этаж (мансарда)- 2,3 м.
Дом в полтора и два этажа:
1-ый этаж 2,5 м.
2-ой этаж 2,4 м. в полутораэтажном доме
2,5 м. в двухэтажном доме.
Внешняя отделка стен Имитация бруса камерной сушки, сорт АВ, толщиной 17 мм. Монтаж через строганый брусок камерной сушки 45х45+/-5 мм. (вентилируемый фасад). Влаго-ветрозащитная мембрана- Ондутис А100.
Внутренняя отделка стен, перегородок Евровагонка камерной сушки, сорт АВ, толщиной 12,5 мм. по строганой рейке 20х40+/-5 мм. либо ГКЛ 12,5 мм.
Отделка потолка Евровагонка камерной сушки, сорт АВ толщиной, 12,5 мм. по строганой рейке 20х40+/-5 мм. либо ГКЛ 12,5 мм.
Пол чистовой Шпунтованная доска камерной сушки толщиной 35-36 мм. сорт АВ. по строганой рейке 20х40+/-5 мм. либо шпунтованная ДСП 16 мм. по разряженной обрешётке из строганой доски камерной сушки 20х95+/-5 мм.
Утепление (пол, потолок) Минеральная вата Knauf 150/200 мм. согласно выбранной толщине утепления.
Утепление стен Плитный утеплитель Rockwool, толщиной 150/200 мм. согласно выбранной толщине утепления.
Звукоизоляция перегородок Плитный утеплитель Rockwool, толщиной 100 мм.
Пароизоляция (стены, перегородки, пол, потолок) Плёнка Ондутис R70. Дополнительная герметизация нахлёстов/примыканий пароизоляционной плёнки клейкой лентой Delta.
Окна Двухкамерные стеклопакеты ПВХ белого цвета, профиль 60 мм. В комплекте: отливы, подоконники, москитные сетки.
Двери Входная- металлическая, утеплённая (Россия). Межкомнатные- филёнчатые.
Наличники на окна и двери Наличник деревянный, строганый, камерной сушки 70-90 мм. с двух сторон.
Лестница (при наличии второго этажа) Деревянная, одно или двухмаршевая. Перила- заводские резные, балясины- заводские точеные, устанавливаются стартовые точёные столбы. Ступени 40х200 мм. Тетива лестницы- 90х140 мм.
Крыша Двускатная, ломаная или вальмовая в соответствии с проектом.
Стропильная система Выполнена из строганой доски камерной сушки 45х145/45х195+/-5 мм. Шаг установки стропил 590 мм.
Обрешётка Выполняется из строганой доски камерной сушки толщиной 20х95+/-5 мм. Шаг крепления обрешетки 350 мм. Контробрешётка выполняется из строганого бруска камерной сушки 45х45+/-5 мм. Крепится по стропилам (вентиляционный зазор).
Подкровельная мембрана Ондутис А100
Кровельное покрытие (на выбор) Металлочерепица 0,45 мм. Цвет на выбор.
Фронтоны (при наличии) Каркас из строганой доски камерной сушки 45х145/45х195+/-5 мм. Обшиваются имитацией бруса камерной сушки, сорт АВ, толщиной 17 мм. Монтаж через строганый брусок камерной сушки 45х45+/-5 мм. (вентилируемый фасад). Влаго-ветрозащитная мембрана- Ондутис А100. Монтаж вентиляционных решёток.
Свесы крыши Ширина 400 мм. Подшиваются вагонкой камерной сушки, сорт АВ.
Терраса/балкон (при наличии) Устанавливаются опорные столбы из строганного бруса камерной сушки 140х140 мм.
Отделка потолка террасы/балкона Евровагонка камерной сушки толщиной 12,5 мм. сорт АВ.
Пол террасы/балкона Шпунтованная доска камерной сушки толщиной 35-36 мм. сорт АВ.
Ограждение террасы/балкона Перила- строганая доска. Балясины- точеные, фигурные. Либо ограждение в скандинавском стиле. Устанавливаются ступени у входа.
Допуск на геометрические параметры Составляет +/- 50 мм по длине с каждой стороны.
Допускается стыковка имитации бруса, вагонки и половой доски По всему периметру стен дома (если ширина и длина дома более 6,0 метров). Вагонки и доски пола в каждой отдельной комнате.
Допуски по имитации бруса, вагонке, доске +/- 5 мм.
В стоимость включена Доставка комплекта материала в радиусе 500 км. от г. Пестова Новгородской области и сборка дома на вашем участке.
Гарантия 5 лет.
Бытовка строительная 2,0х3,0 м. каркасно-щитовая. Стоимость 23000 руб. Остаётся на участке Заказчика.
Туалет 1,0х1,0 м. каркасно-щитовой. Стоимость 12000 руб. Остаётся на участке Заказчика.
Генератор Стоимость аренды на весь срок строительства 15000 руб. ГСМ за счёт Заказчика.

Строительство домов производится в нескольких видах: под усадку, когда сруб будет отстаиваться некоторое время и полностью под ключ.

В зимнее время года лучше всего строить в холодную погоду, чтобы каркас не отсырел, летом - не под дождем.

Оптимальными для сада или дачи считаются экономичные дома на винтовых сваях, на нашем сайте находятся одноэтажные и полуторатажные дома.

Для ПМЖ (постоянного проживания), советуем теплые и надежные одноэтажные и двухэтажные коттеджи и дома на плитном и ленточном фундаменте.

Существует 2 размера утепления: 150 мм и 200 мм. Каркасные дома с толщиной утеплителя 150 миллиметров получаются дешевле, но менее энергоэффективными.

Дополнительные услуги


Дом с каркасной структурой маленькой террасой, согласно плану 123 полутораэтажный с теплоизоляционной двускатной кровлей, выделяется экологической безопасностью, за счет использования OSB-плит, теплоизоляционной ваты, что обеспечивает отменную теплоизоляцию, идеальный микроклимат в жилище. Размеры дома составляют 7х9 м., общая пригодная для жизни площадь - 109.7 кв.м.. Наша фирма в кратчайшие сроки построит дом с каркасной структурой по персональному или типовому плану в Ейске в любое время года и на выбранном вами типе грунта.

Популярные проекты


Одноэтажные дома из бруса Дома из бруса более 100 кв.м. Каркасные дома 6х5
хит продаж
Тип: с большой террасой
Общая площадь: 2
3485340
от 3319400
хит продаж
Тип: с балконом
Общая площадь: 2
3926340
от 3739400
хит продаж
Тип:
Общая площадь: 2
3726840
от 3549400
Дома из бруса

Заказать или задать вопрос



Заказать или задать вопрос

Заказать звонок