Дома под ключ в Ейске
Отзывы из Яндекс Карт
4.9
82 отзывов
Дополнительные услуги 88%
2 154 оценок
Комплектации 89%
1 535 оценок
Планировки 90%
2 484 оценок
Проекты 93%
2 231 оценок
С
Ульяна Черная12.05.2026 г.
Когда выбирала компанию, сомневалась из-за отзывов в интернете, но «БрусДома» приятно удивили: построили дом 5,5х10 с верандой и эркером, все этапы фоткали, присылали в ватсап, очень удобно для тех, кто далеко живёт.
С
Гелла Щербакова29.04.2025 г.
Спасибо за терпение и помощь в выборе проекта. Я долго не могла определиться, но мне предоставили подробные консультации и подобрали оптимальный вариант каркасной бани. Строительство заняло мало времени, и теперь у нас есть место для отдыха души и тела.
Отзывы из Google Карт
4.8
49 отзывов
Дополнительные услуги 88%
2 154 оценок
Комплектации 89%
1 535 оценок
Планировки 90%
2 484 оценок
Проекты 93%
2 231 оценок
С
Алан З.11.03.2026 г.
Дом 7,5х7,5 с вторым светом и эркером, строила бригада узбеков под руководством прораба, работали шустро, но мусор раскидывали, пришлось напоминать убирать.
С
Костя Красоткин17.01.2026 г.
Долго выбирал компанию для каркасного дома 6х10 с панорамным остеклением и балконом. «БрусДома» сделали за два месяца, почти без замечаний. Одно — на балконе перила шатаются, надо будет самому укрепить.
С
Макс Д.26.02.2025 г.
Я ценю в работе прежде всего честность и пунктуальность, и компания Брус дома проявила оба этих качества в полной мере, выполнив все обязательства в точности как было договорено и построив мне баню, которая радует каждый раз, когда я в ней нахожусь. Спасибо за качество.
Отзывы из 2гис
4.9
46 отзывов
Дополнительные услуги 88%
2 154 оценок
Комплектации 89%
1 535 оценок
Планировки 90%
2 484 оценок
Проекты 93%
2 231 оценок
С
Афанасий16.04.2026 г.
Дом для сдачи в аренду строил, простой, бюджетный. Сроки выдержали, объект сдали. Арендаторы уже два года живут, нареканий по конструкции нет, только бытовые проблемы.
С
Яромир Ф.27.02.2026 г.
Честно скажу, не ожидал, что компания так отнесётся к мелким правкам. Заказывал баню 5,5х6,5 с бассейном, потом передумал насчёт формы бассейна. Мне пошли навстречу, переделали чашу за доплату. Работой доволен, хотя пришлось ждать две недели из-за пересчёта материалов.
С
Максим А.24.06.2025 г.
Мне импонирует, когда люди гордятся своей работой, и сотрудники компании Брус дома именно такие. Они не просто отрабатывают деньги, а действительно создают качественные деревянные дома. Мой проект из бруса выполнен безупречно, все ровно, красиво и надежно. Рекомендую эту компанию как ответственного и честного застройщика.


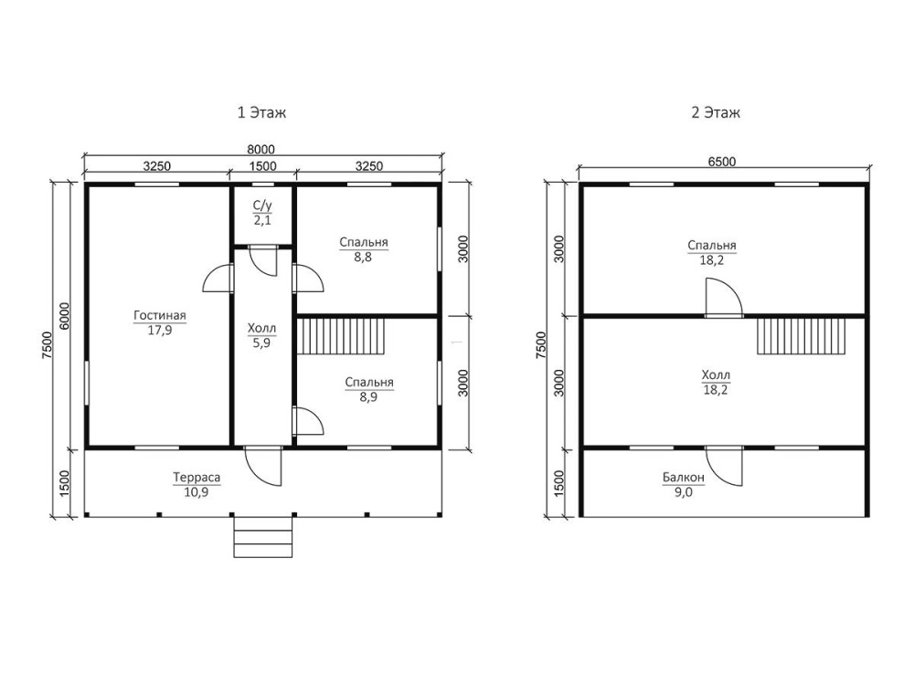
Проект №42 Дом с террасой и балконом 7,5х8

каркас из строганой доски
Создайте свой план для этого проекта
и отправьте его нам на расчет в один клик.
Каркасный дом (150 мм) 7,5х8 Толщина утепления 150 мм 2762200 Заказать
Каркасный дом (200 мм) 7,5х8 Толщина утепления 200 мм 2932200 Заказать

Доставка включена в стоимость дома!

Для того, чтобы адаптировать готовый проект и получить свою уникальную планировку, воспользуйтесь планировщиком.

При помощи планировщика можно создавать подходящие эскизы, планы, схемы, чертежи дома с мансардой, эркером, с требуемым числом комнат. Вы сможете получить отличный проект, стопроцентно отвечающий вашим запросам.

Вы имеете возможность выбрать определенный вид крыши: четырехскатная, двускатная и вальмовая. Двухскатная считается особенно популярной у малометражных построек.

Востребованные на данный момент размеры домов и коттеджей: мини - до 50м2 (чаще всего, 1 этажные); компактные - от 70 до 100 квадратов (обычно двухэтажные); большие постройки - от 150 квадратных метров и свыше.

Готовы предложить дуплексы - каркасные дома с двумя входами на две семьи. Эти дома предполагаются для двух хозяев, они делятся на две части, для обоих половин - свой отдельный вход.


Наши работы

Перейти в галерею


Комплектация

Длина: 7.5 м
Ширина: 8 м
Общая площадь: 81.75 м2
Исполнение Под ключ (с отделкой)
Фундамент Свайно-винтовой или ж/б сваи (рассчитываются отдельно).
Гидроизоляция фундамента Рубероид в два слоя.
Основание (обвязка) Из обрезного бруса 150х150 мм. 150х200 мм. согласно выбранной толщине утепления. Торцевая доска строганая 45х145/45х195+/-5 мм. согласно выбранной толщине утепления. Обработка антисептиком.
Цокольное перекрытие Строганая доска камерной сушки 45х145/45х195+/-5 мм. с шагом 590 мм. Обработка антисептиком.
Пол черновой Обрезная доска камерной сушки 20х100 мм.
Влаго-ветрозащита чернового пола Мембрана Ондутис А100.
Внешние стены Стойки каркаса из строганой доски камерной сушки 45х145/45х195+/-5 мм. с шагом 590 мм. Верхняя двойная и нижняя обвязки из строганой доски камерной сушки 45х145/45х195+/-5 мм. Разгрузочный ригель из строганой доски 45х145+/-5 мм. Укосины из строганой доски 20х95 мм.
Перегородки Стойки каркаса из строганой доски камерной сушки 45х95+/-5 мм. с шагом 590 мм. Верхняя двойная и нижняя обвязки из строганой доски 45х95+/-5 мм. Разгрузочный ригель из строганой доски камерной сушки 45х145+/-5 мм. Укосины из строганой доски камерной сушки 20х95 мм.
Сборка каркаса На гвозди.
Высота от пола до потолка Дом одноэтажный: 2,5 м. Дом с мансардой: 1-ый этаж- 2,5 м.
2-ой этаж (мансарда)- 2,3 м.
Дом в полтора и два этажа:
1-ый этаж 2,5 м.
2-ой этаж 2,4 м. в полутораэтажном доме
2,5 м. в двухэтажном доме.
Внешняя отделка стен Имитация бруса камерной сушки, сорт АВ, толщиной 17 мм. Монтаж через строганый брусок камерной сушки 45х45+/-5 мм. (вентилируемый фасад). Влаго-ветрозащитная мембрана- Ондутис А100.
Внутренняя отделка стен, перегородок Евровагонка камерной сушки, сорт АВ, толщиной 12,5 мм. по строганой рейке 20х40+/-5 мм. либо ГКЛ 12,5 мм.
Отделка потолка Евровагонка камерной сушки, сорт АВ толщиной, 12,5 мм. по строганой рейке 20х40+/-5 мм. либо ГКЛ 12,5 мм.
Пол чистовой Шпунтованная доска камерной сушки толщиной 35-36 мм. сорт АВ. по строганой рейке 20х40+/-5 мм. либо шпунтованная ДСП 16 мм. по разряженной обрешётке из строганой доски камерной сушки 20х95+/-5 мм.
Утепление (пол, потолок) Минеральная вата Knauf 150/200 мм. согласно выбранной толщине утепления.
Утепление стен Плитный утеплитель Rockwool, толщиной 150/200 мм. согласно выбранной толщине утепления.
Звукоизоляция перегородок Плитный утеплитель Rockwool, толщиной 100 мм.
Пароизоляция (стены, перегородки, пол, потолок) Плёнка Ондутис R70. Дополнительная герметизация нахлёстов/примыканий пароизоляционной плёнки клейкой лентой Delta.
Окна Двухкамерные стеклопакеты ПВХ белого цвета, профиль 60 мм. В комплекте: отливы, подоконники, москитные сетки.
Двери Входная- металлическая, утеплённая (Россия). Межкомнатные- филёнчатые.
Наличники на окна и двери Наличник деревянный, строганый, камерной сушки 70-90 мм. с двух сторон.
Лестница (при наличии второго этажа) Деревянная, одно или двухмаршевая. Перила- заводские резные, балясины- заводские точеные, устанавливаются стартовые точёные столбы. Ступени 40х200 мм. Тетива лестницы- 90х140 мм.
Крыша Двускатная, ломаная или вальмовая в соответствии с проектом.
Стропильная система Выполнена из строганой доски камерной сушки 45х145/45х195+/-5 мм. Шаг установки стропил 590 мм.
Обрешётка Выполняется из строганой доски камерной сушки толщиной 20х95+/-5 мм. Шаг крепления обрешетки 350 мм. Контробрешётка выполняется из строганого бруска камерной сушки 45х45+/-5 мм. Крепится по стропилам (вентиляционный зазор).
Подкровельная мембрана Ондутис А100
Кровельное покрытие (на выбор) Металлочерепица 0,45 мм. Цвет на выбор.
Фронтоны (при наличии) Каркас из строганой доски камерной сушки 45х145/45х195+/-5 мм. Обшиваются имитацией бруса камерной сушки, сорт АВ, толщиной 17 мм. Монтаж через строганый брусок камерной сушки 45х45+/-5 мм. (вентилируемый фасад). Влаго-ветрозащитная мембрана- Ондутис А100. Монтаж вентиляционных решёток.
Свесы крыши Ширина 400 мм. Подшиваются вагонкой камерной сушки, сорт АВ.
Терраса/балкон (при наличии) Устанавливаются опорные столбы из строганного бруса камерной сушки 140х140 мм.
Отделка потолка террасы/балкона Евровагонка камерной сушки толщиной 12,5 мм. сорт АВ.
Пол террасы/балкона Шпунтованная доска камерной сушки толщиной 35-36 мм. сорт АВ.
Ограждение террасы/балкона Перила- строганая доска. Балясины- точеные, фигурные. Либо ограждение в скандинавском стиле. Устанавливаются ступени у входа.
Допуск на геометрические параметры Составляет +/- 50 мм по длине с каждой стороны.
Допускается стыковка имитации бруса, вагонки и половой доски По всему периметру стен дома (если ширина и длина дома более 6,0 метров). Вагонки и доски пола в каждой отдельной комнате.
Допуски по имитации бруса, вагонке, доске +/- 5 мм.
В стоимость включена Доставка комплекта материала в радиусе 500 км. от г. Пестова Новгородской области и сборка дома на вашем участке.
Гарантия 5 лет.
Бытовка строительная 2,0х3,0 м. каркасно-щитовая. Стоимость 23000 руб. Остаётся на участке Заказчика.
Туалет 1,0х1,0 м. каркасно-щитовой. Стоимость 12000 руб. Остаётся на участке Заказчика.
Генератор Стоимость аренды на весь срок строительства 15000 руб. ГСМ за счёт Заказчика.

Строительство домов производится в нескольких видах: под усадку, когда сруб будет отстаиваться некоторое время и полностью под ключ.

В зимнее время года лучше всего строить в холодную погоду, чтобы каркас не отсырел, летом - не под дождем.

Оптимальными для сада или дачи считаются экономичные дома на винтовых сваях, на нашем сайте находятся одноэтажные и полуторатажные дома.

Для ПМЖ (постоянного проживания), советуем теплые и надежные одноэтажные и двухэтажные коттеджи и дома на плитном и ленточном фундаменте.

Существует 2 размера утепления: 150 мм и 200 мм. Каркасные дома с толщиной утеплителя 150 миллиметров получаются дешевле, но менее энергоэффективными.

Дополнительные услуги


Дом с каркасной структурой балконом и большой террасой, согласно плану 42 полутораэтажный с теплоизоляционной двускатной кровлей, выделяется экологической безопасностью, за счет использования OSB-плит, теплоизоляционной ваты, что обеспечивает отменную теплоизоляцию, идеальный микроклимат в жилище. Размеры дома составляют 7,5х8 м., общая пригодная для жизни площадь - 81.75 кв.м.. Наша фирма в кратчайшие сроки построит дом с каркасной структурой по персональному или типовому плану в Ейске в любое время года и на выбранном вами типе грунта.

Популярные проекты


Двухэтажные каркасные дома Бани из бруса 6х8 Бани из бруса 6х6
хит продаж
Тип:
Общая площадь: 2
2700780
от 2572200
хит продаж
Тип:
Общая площадь: 2
3131280
от 2982200
хит продаж
Тип:
Общая площадь: 2
3012840
от 2869400
Дома из бруса

Заказать или задать вопрос



Заказать или задать вопрос

Заказать звонок